Uniform neu

Also da wär mir aber ehricherweise ne neue Uniform lieber als ne Poolwäsche :wink:
Klar, für HA-Mitarbeiter ist es von Vorteil, und die Uniform am weg in/von der Arbeit ist ein zeichen großer Unprofessionalität.
Persönlich passts mir aber trotzdem recht gut. Ich paar Sätze gewand auf der Dienststelle und wasch auch da.

Da hab ich lieber ne Unifrom die mich auf der Autobahn anständig schützt, und nen Kollegen dessen Unifrom stinkt, als umgekehrt :smiley:

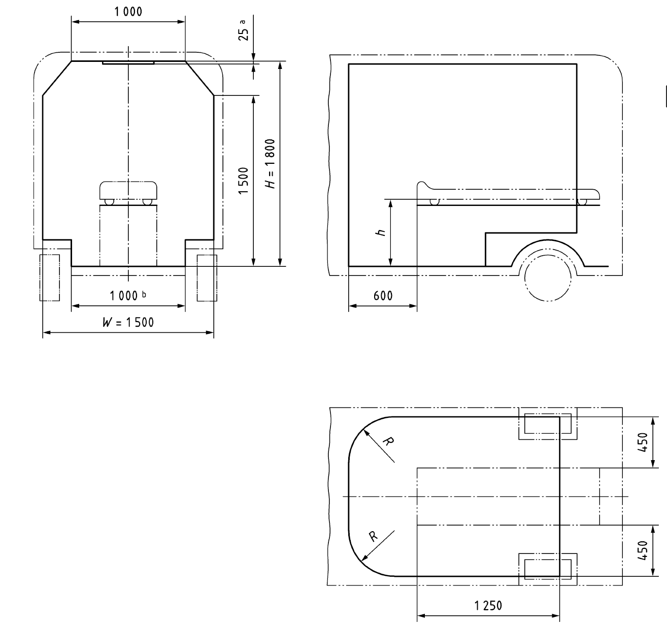
Das ist nicht korrekt siehe in der S. 22 „4.4.4.3 Maße für den Patientenraum und für den Behandlungsbereich bei Typ C“
Der RTW-C aus NÖ erfüllt Typ-C (von der Austattung) wenn ein NEF dabei ist.

Ja die sind ident mit Typ B. Nochmal, der RTW-C ist ein Typ B (Ausstattungs-/Größe bezogen) laut Norm. Die Norm schreibt ja nicht, dass ein C erst dann ein C ist wenn das NEF dabei ist :wink:
Typ B passt genau für einen RTW - ist ja auch im Ursprungsland der Norm, in England so :slight_smile:

Aber das passt nicht zur Uniform :slight_smile:

Hello … mal Thread reanimieren.
Gibt es neues an der Norm gerechten PSA Front? :slight_smile:

Der Präsident meines LV meinte neulich „Das Großprojekt „Uniform neu“ wurde vor kurzem beschlossen und soll noch 2022 umgesetzt werden.“

In welcher Form und was genau beschlossen wurde, weiß ich allerdings (noch?) nicht.

Außer in der Bundeshauptstadt und allen Bundesländern mit einem „R“ im Namen :laughing: :laughing: :laughing:

na ich bin gespannt. Ganz glauben kann ich es noch nicht. Bzw. wird es sicher wieder irgendwelche extra Würstln geben … und dann nach 1-2 Jahren kommen auch diese Bundesländer drauf das es doch notwendig ist und stellen dann auch um :laughing: kennen wir ja aus der Vergangenheit :smiley:

Von welchem LV sprechen wir da?

Vorarlberg

Gilt auch für S - die westlichen Länder setzen auf gelb und der Rest wohl nicht ???‍♂️

Deja-vu :laughing:

Und das gilt laut eurem Präsident für ganz Ö? Das das Projekt quasi durch ist? Oder nur für Vorarlberg?

Das Gremium, welches die Thematik behandelt hat für ganz Österreich, hat sich „geeinigt“ und die neue Uniform beschlossen.

Ich weiß nur, dass die Uniform für meinen LV einen sehr hohen Gelbanteil haben wird. Mehr leider nicht. Sorry. Gerüchten zufolge aber wird es zwei Varianten geben. Die G’scheite, und die Andere.

Auch auf Kommandantenebene wurden noch keine Bilder gezeigt was genau beschlossen wurde.

Bin ja schon gespannt wie in Zukunft dann der offizielle Standpunkt in meinem LV ist. Ich nehme jetzt einfach mal an, dass wir nicht die gscheite, sondern die andere bekommen. Interessant wird dann nur ob die „gscheite“ auch geduldet wird, oder ob uns der LV ausdrücklich nur die andere erlaubt…

Wenns „gscheit“ wird gibts sowieso nur eine Version für ganz Österreich…

oder es gibt wieder zwei versionen, wie erwähnt eine west und ost und mit der Zeit kommt das ÖRK drauf dass es doch sinnvoll is eine Gemeinsamkeit zu haben und schreibt es dem Osten dann wieder vor —> siehe Fahrzeug Design mit dem Gelb Anteil

Ich fürchte, es wird genau so wie bei den Autos laufen - solange nicht von extern gesetzliche Vorgaben kommen wird das mit Tagesleuchtfarben und entsprechend verbesserter der Sichtbarkeit nix werden, zumindest nicht überall…

naja aba die Vorgabe gibt es doch. Daher muss ja auch umgestellt werden.
Die Frage ist nur: Wie erreicht der Osten dann jenes Ergebnis (im Bezug auf den Anteil der Tagesleuchtfarbe), das es der Vorschrift entsprechend umgesetzt werden kann wenn es das gleiche Design wie der Westen ist

Also mir persönlich ists egal ob die Uniform jetzt einen hohen Gelbanteil hat oder nicht.
Ich bin mehr als zufrieden das wir jetzt eine Ordentliche Qualität bei der Uniform erwarten können.